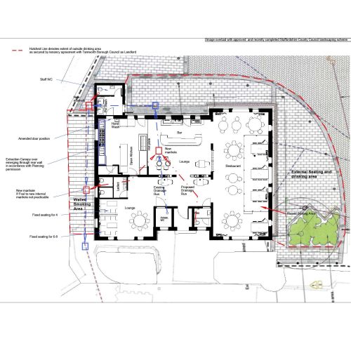
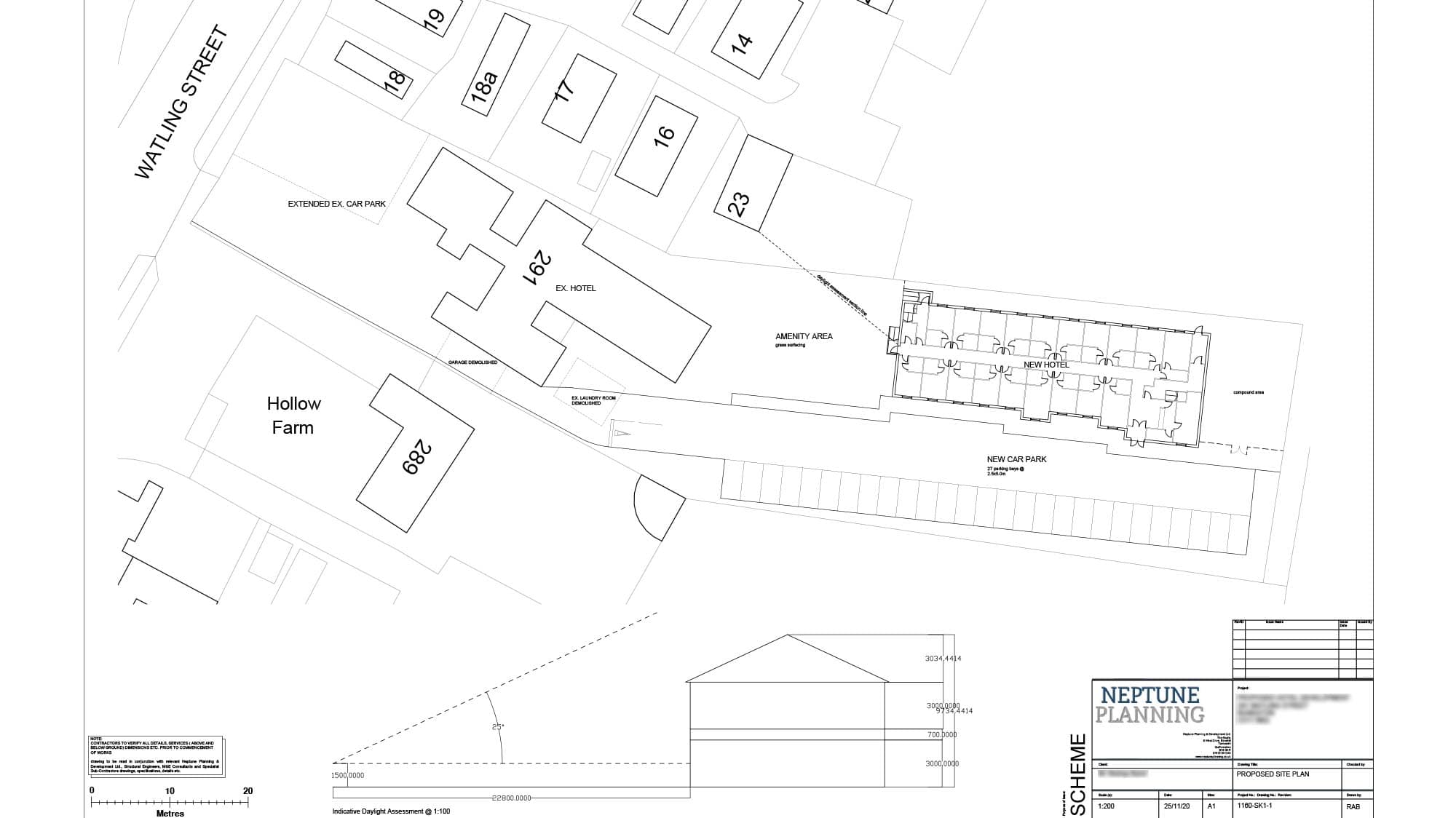
Neptune Architectural have an extensive background in advising on and taking forward proposals for a range of development types. These include housing proposals for major urban extensions, infill housing, heritage proposals, commercial developments for mixed use retail, hotel proposals, vehicle rentals, bars and restaurants and industrial / agricultural developments.
In an era of ever increasing complexity in planning legislation, policy and procedure – we will build upon initial ideas and progress projects all the way through planning, technical design and building regulations through to advising you whilst you build your project and move in, or sell it as a completed development. We will coordinate multi-disciplinary teams of technical experts to prepare and progress a range of planning applications from small scale proposals up to large Environmental Impact Assessment scale developments.













